Lake Manor - 3260H32P03

Overview

Floor plan

Manufactured

About this home

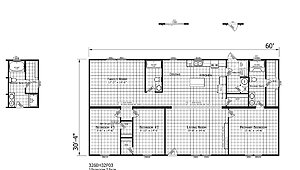
The Lake Manor / 3260H32P03 built by Champion Homes is a spacious home designed for comfort and everyday living. With 1,820 square feet, 3 bedrooms, and 2 bathrooms, The 3260H32P03 offers plenty of room to relax and gather. A large living room welcomes you in and connects easily to the dining area and kitchen, creating a great space for meals and conversation. A separate family room adds even more room for entertaining or quiet evenings at home. The private primary bedroom includes its own bath and walk-in closet, while two additional bedrooms share a nearby bath. The 3260H32P03 delivers space, comfort, and a layout made for modern living.
Share this home

Details

Built by Champion Homes
Bedrooms 3
Bathrooms 2.00
Square Feet 1820
Length 60' 0"
Width 30' 4"
Sections 2
Stories 1
Style Ranch

Tours & Videos

3D Tour

No 3d Tour Available

Specifications

No specification data available

Photos

PLEASE NOTE:
All sizes and dimensions are nominal or based on approximate builder measurements. Modulars Only reserves the right to make changes due to any changes in material, color, specifications and features anytime without notice or obligation.