Lake Manor - 3252H32P03

Overview

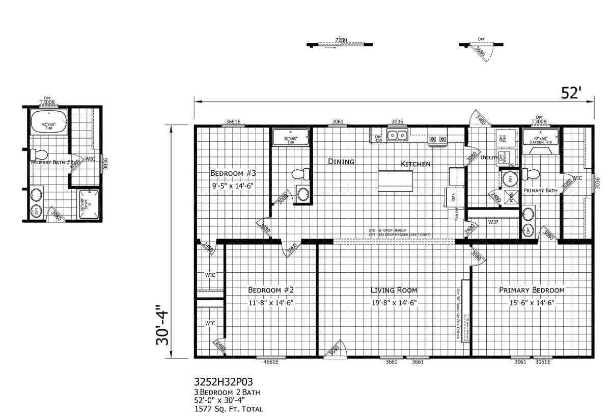
Floor plan

Manufactured

About this home

The Lake Manor / 3252H32P03 built by Champion Homes is a roomy home designed for comfort and everyday living. With 1,577 square feet, 3 bedrooms, and 2 bathrooms, The 3252H32P03 offers a layout that feels open and welcoming. The large living room sits at the center of the home and flows easily into the dining area and kitchen, creating a great space for gatherings and daily life. The private primary bedroom includes its own bath and walk-in closet, while two additional bedrooms share a nearby bathroom. The 3252H32P03 blends space, style, and function into a home families will love.
Share this home

Details

Built by Champion Homes
Bedrooms 3
Bathrooms 2.00
Square Feet 1577
Length 52' 0"
Width 30' 4"
Sections 2
Stories 1
Style Ranch

Tours & Videos

3D Tour

No 3d Tour Available

Specifications

No specification data available

Photos

PLEASE NOTE:
All sizes and dimensions are nominal or based on approximate builder measurements. Modulars Only reserves the right to make changes due to any changes in material, color, specifications and features anytime without notice or obligation.