Lake Manor - 2856H32P01

Overview

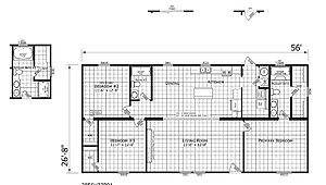
Floor plan

Manufactured

About this home

The Lake Manor / 2856H32P01 built by Champion Homes is a roomy and inviting home designed for comfortable living. With 1,493 square feet, 3 bedrooms, and 2 bathrooms, The 2856H32P01 provides plenty of space for everyday life. The kitchen and dining area open to a large living room, creating a bright gathering space perfect for relaxing or entertaining. The private primary bedroom features its own bath and walk-in closet, while two additional bedrooms share a second bath. The 2856H32P01 offers generous living areas and smart design in a home built for comfort.
Share this home

Details

Built by Champion Homes
Bedrooms 3
Bathrooms 2.00
Square Feet 1493
Length 56' 0"
Width 26' 8"
Sections 2
Stories 1
Style Ranch

Tours & Videos

3D Tour

No 3d Tour Available

Specifications

No specification data available

Photos

PLEASE NOTE:
All sizes and dimensions are nominal or based on approximate builder measurements. Modulars Only reserves the right to make changes due to any changes in material, color, specifications and features anytime without notice or obligation.