Lake Manor - 1676H32P01

Overview

Floor plan

Manufactured

About this home

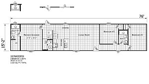
The Lake Manor / 1676H32P01 built by Champion Homes is a spacious home designed for comfort and easy everyday living. With 1,153 square feet, 3 bedrooms, and 2 bathrooms, The 1676H32P01 offers a layout that feels open while still providing private spaces. The kitchen sits at the center and connects to the dining area and large living room, creating a bright place for gathering with family or friends. The primary bedroom includes its own bath and walk-in closet, while two additional bedrooms share a second bath. The 1676H32P01 delivers space, comfort, and practical design in a welcoming home.
Share this home

Details

Built by Champion Homes
Bedrooms 3
Bathrooms 2.00
Square Feet 1153
Length 76' 0"
Width 15' 2"
Sections 1
Stories 1
Style Ranch

Tours & Videos

3D Tour

No 3d Tour Available

Specifications

No specification data available

Photos

PLEASE NOTE:
All sizes and dimensions are nominal or based on approximate builder measurements. Modulars Only reserves the right to make changes due to any changes in material, color, specifications and features anytime without notice or obligation.