Lake Manor - 1660H22P01

Overview

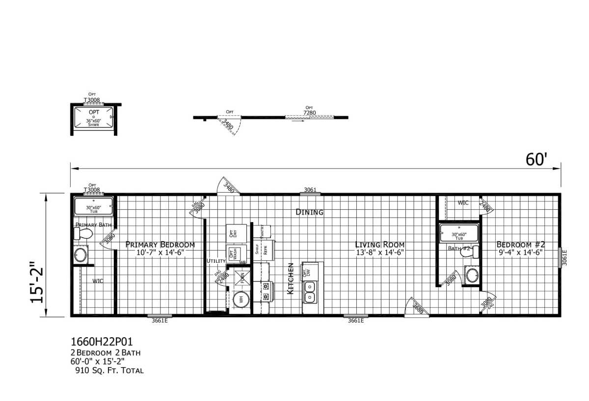
Floor plan

Manufactured

About this home

The Lake Manor / 1660H22P01 built by Champion Homes is a spacious home designed for comfort and easy living. With 910 square feet, 2 bedrooms, and 2 bathrooms, The 1660H22P01 offers a smart layout that feels open and welcoming. The kitchen sits at the center of the home and flows into the dining area and large living room, creating a bright place to relax or gather. The private primary bedroom includes its own bath and walk-in closet, while the second bedroom and bath provide space for guests or family. The 1660H22P01 blends space, comfort, and everyday convenience into one inviting home.
Share this home

Details

Built by Champion Homes
Bedrooms 2
Bathrooms 2.00
Square Feet 910
Length 60' 0"
Width 15' 2"
Sections 1
Stories 1
Style Ranch

Tours & Videos

3D Tour

No 3d Tour Available

Specifications

No specification data available

Photos

PLEASE NOTE:
All sizes and dimensions are nominal or based on approximate builder measurements. Modulars Only reserves the right to make changes due to any changes in material, color, specifications and features anytime without notice or obligation.