Lake Manor - 1476H42P01

Overview

Floor plan

Manufactured

About this home

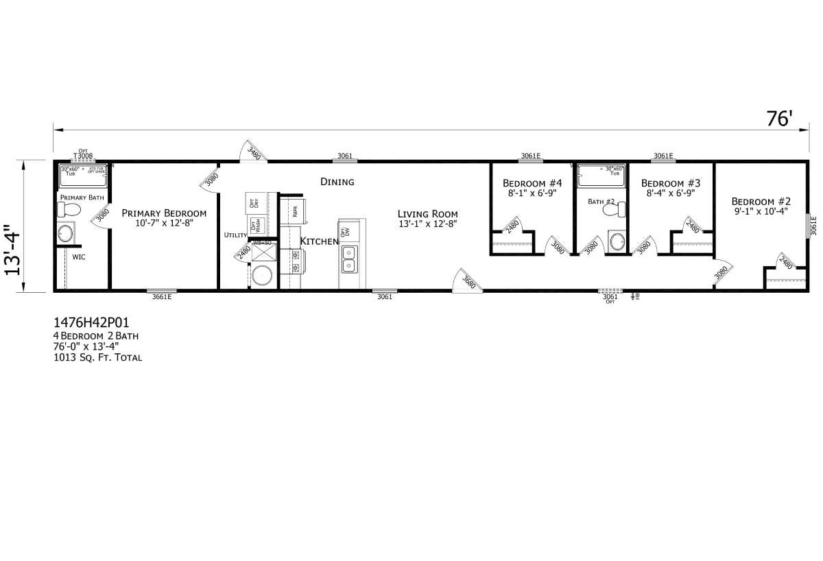
The Lake Manor / 1476H42P01 built by Champion Homes is a spacious home designed for comfort and flexibility. With 1,013 square feet, 4 bedrooms, and 2 bathrooms, The 1476H42P01 provides plenty of room for families or guests. The kitchen sits at the center of the home and flows into the dining area and living room, creating a bright and open space for everyday living. The private primary bedroom features its own bath and walk-in closet, while three additional bedrooms share a second bath. The 1476H42P01 offers smart design, generous space, and a welcoming place to call home.
Share this home

Details

Built by Champion Homes
Bedrooms 4
Bathrooms 2.00
Square Feet 1013
Length 76' 0"
Width 13' 4"
Sections 2
Stories 1
Style Ranch

Tours & Videos

3D Tour

No 3d Tour Available

Specifications

No specification data available

Photos

PLEASE NOTE:
All sizes and dimensions are nominal or based on approximate builder measurements. Modulars Only reserves the right to make changes due to any changes in material, color, specifications and features anytime without notice or obligation.