Lake Manor - 1476H32P01

Overview

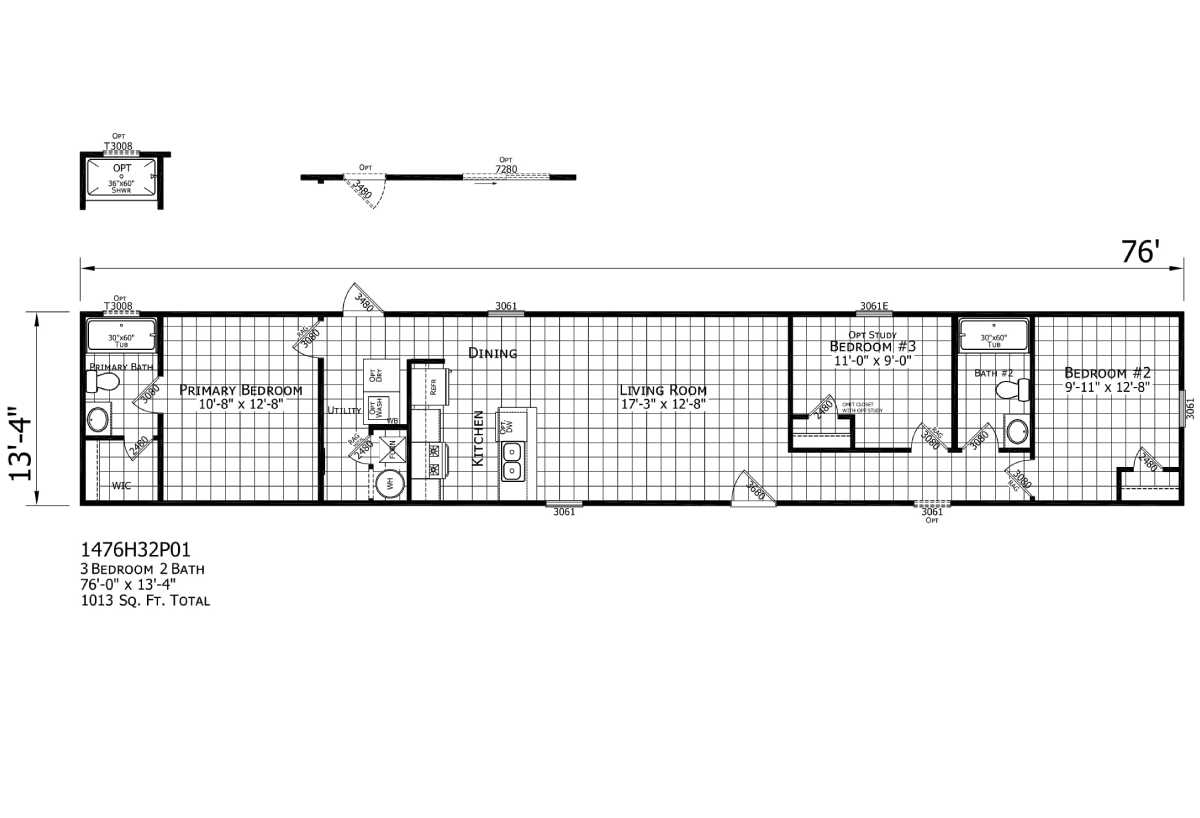
Floor plan

Manufactured

About this home

The Lake Manor / 1476H32P01 built by Champion Homes is a spacious and inviting home designed for comfortable living. With 880 square feet, 3 bedrooms, and 2 bathrooms, The 1476H32P01 offers a layout that makes everyday life easy. The kitchen sits at the center of the home and flows into the dining area and large living room, creating a bright space for relaxing or entertaining. The private primary bedroom features its own bath and walk-in closet, while two additional bedrooms share a second bath. The 1476H32P01 brings together smart design, comfort, and great everyday livability.
Share this home

Details

Built by Champion Homes
Bedrooms 3
Bathrooms 2.00
Square Feet 1013
Length 76' 0"
Width 13' 4"
Sections 1
Stories 1
Style Ranch

Tours & Videos

3D Tour

No 3d Tour Available

Specifications

No specification data available

Photos

PLEASE NOTE:
All sizes and dimensions are nominal or based on approximate builder measurements. Modulars Only reserves the right to make changes due to any changes in material, color, specifications and features anytime without notice or obligation.