Lake Manor - 1456H22P01

Overview

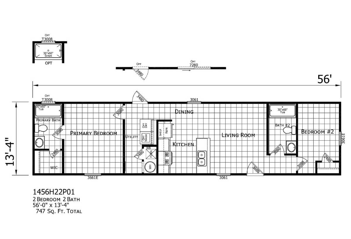
Floor plan

Manufactured

About this home

The Lake Manor / 1456H22P01 built by Champion Homes is a welcoming home designed for comfort and efficient living. With 747 square feet, 2 bedrooms, and 2 bathrooms, The 1456H22P01 offers a smart layout that makes great use of space. The kitchen sits at the center of the home and opens to the dining area and living room, creating a bright place to relax or gather. The private primary bedroom features its own bath and closet, while the second bedroom and bath add flexibility. The 1456H22P01 blends comfort, style, and function into a home built for everyday living.
Share this home

Details

Built by Champion Homes
Bedrooms 2
Bathrooms 2.00
Square Feet 747
Length 56' 0"
Width 13' 4"
Sections 1
Stories 1
Style Ranch

Tours & Videos

3D Tour

No 3d Tour Available

Specifications

No specification data available

Photos

PLEASE NOTE:
All sizes and dimensions are nominal or based on approximate builder measurements. Modulars Only reserves the right to make changes due to any changes in material, color, specifications and features anytime without notice or obligation.