Ironclad - 2868-07

Overview

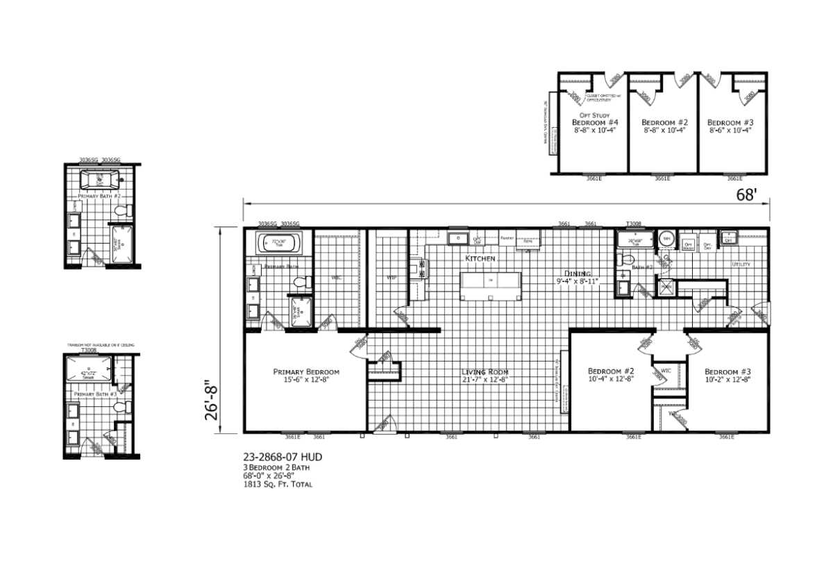
Floor plan

Manufactured

About this home

The Ironclad / 2868-07 built by Champion Homes offers 1813 square feet of thoughtfully designed living space, featuring 3 bedrooms and 2 bathrooms. The spacious layout includes a welcoming living area, a well-equipped kitchen with ample counter space, and a comfortable primary suite with a private bath. Additional bedrooms provide flexibility for guests or a home office. The 2868 blends functionality and comfort, making it a great choice for modern living.
Share this home

Details

Built by Champion Homes
Bedrooms 3
Bathrooms 2.00
Square Feet 1813
Length 68' 0"
Width 26' 8"
Sections 2
Stories 1
Style Ranch

Tours & Videos

3D Tour

No 3d Tour Available

Specifications

No specification data available

Photos

PLEASE NOTE:
All sizes and dimensions are nominal or based on approximate builder measurements. Modulars Only reserves the right to make changes due to any changes in material, color, specifications and features anytime without notice or obligation.